Anh chj đang cần xây dựng mới hoặc nâng tầng nhà ở tại Phường Tây Thạnh Tp HCM mà đang băn khoăn như:
Ở chuyên mục này Công Ty TNHH Thiết Kế Và Xây Dựng D.C sẽ giải đáp thắc mắc những băn khoăn của anh chị.
Bước 1. Kiểm tra Thông Tin Quy Hoạch Và Xây Dựng.
Bước 2. Tư Vấn và Kiểm Tra Ranh Đất của nhà đất cần xây dựng.
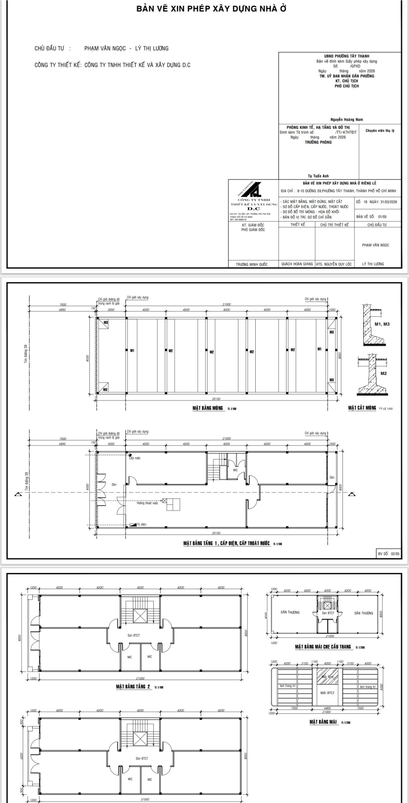
Bước 3. Vẽ thiết kế bản vẽ xin phép xây dựng.
Bước 4. Nộp hồ sơ tại UBND Phường Tây Thạnh
Bước 5. Nhận giấy phép xây dựng.
Sau khi quý anh chị gửi thông tin sổ hồng nhà đất cần xây dựng. Công ty sẽ kiểm tra thông tin quy hoạch và xây dựng như sau:
Quy hoạch của thửa đất, Quy hoạch lộ giới, Diện tích sau khi trừ lộ giới, Khoảng lùi xây dựng, Mật độ xây dựng, Diện tích xây dựng tầng 1, Quy mô số tầng, Độ vươn ban công.

Sau khi tư vấn, nắm rõ mục đích và nhu cầu xây dựng của quý anh chị.
Để kiểm tra hiện trạng ranh đất có khác gì so với Giấy chứng nhận. Bên công ty chúng tôi sẽ xuống để đo và kiểm tra hiện trạng ranh thửa đất.
Khi đo và kiểm tra xong sẽ có Biên Bản Xác Định Ranh Giới – Mốc Giới Thửa Đất. Biên bản này công ty sẽ chịu trách nhiệm về ranh thửa đất. Biên bản này sau này để khi làm hồ sơ khởi công công trình xây dựng.

Quý anh chị đã chọn được đơn vị vẽ bản vẽ thiết kế. Quý anh chị sẽ gửi file thiết kế cho công ty chúng tôi. Sau đó Công ty chúng tôi sẽ tiến hành vẽ bản vẽ Xin Phép Xây Dựng.

Tin liên quan